- VERKOCHT
Sfeervolle maisonnette met royaal balkon en prachtig uitzicht!
Of wij het nu hebben over de ruime keuken, woonkamer met een zonnig balkon en uitzicht over het water, de 2 ruime slaapkamers met knieschotten, de badkamer, eigen opgang, berging, of het tweede gezamenlijk terras, deze woning is klaar voor haar nieuwe bewoners!
Aan de groene rand van Bornholm West ligt deze maisonnette en nabij het wijkwinkelcentrum en het Haarlemmermeerse Bos op korte afstand, én uitstekende verbindingen richting Schiphol, Amsterdam en Haarlem, woon je hier zeer centraal en comfortabel.
Indeling
Begane grond:
Aan de buitenzijde leidt een overdekte buitentrap je naar de drie maisonnettes, inclusief jouw nieuwe thuis! De privéberging met electra bevindt zich op de begane grond – perfect voor je fietsen en extra opslagruimte.
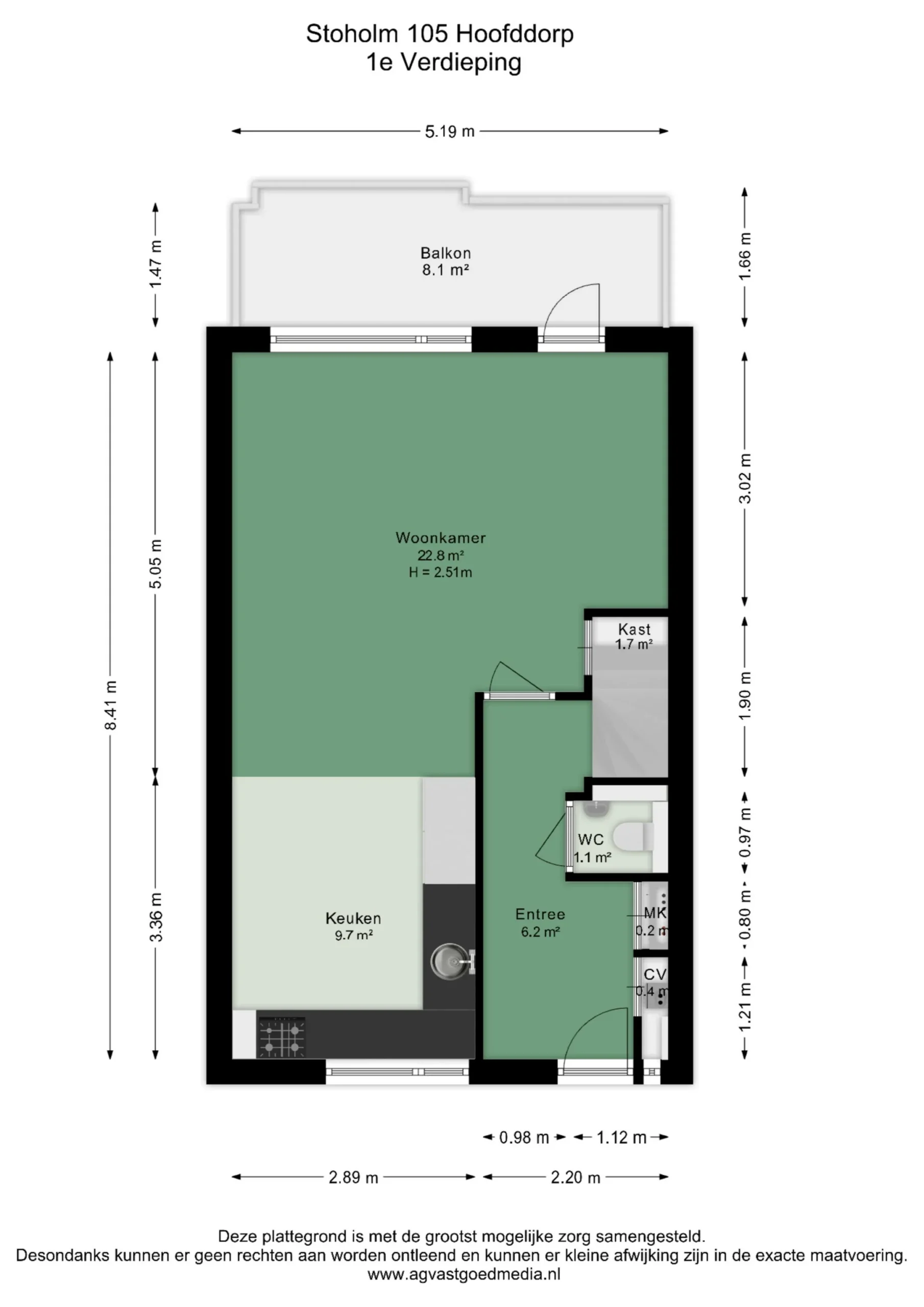
Eerste verdieping:
Binnenkomst in de lichte hal met meterkast, bergruimte met HR-combiketel (ATAG 2015) en moderne toiletruimte (wandcloset en fontein, half betegeld). De ruime woonkamer met grote ramen biedt fraai uitzicht over de groene IJweg en heeft een gezellige sfeer voor etentjes of een avondje ontspannen. Een deur vanuit de woonkamer brengt je naar het heerlijke zonnige balkon.
Via het eetgedeelte bereik je de keuken, uitgevoerd in een hoekopstelling. De keuken is uitgerust met een vierpits gaskookplaat, afzuigkap, vaatwasser, koelkast met vriesladen en een oven (2019).
Tweede verdieping:
Hier vind je twee ruime slaapkamers, beide voorzien van HR++ glas en een nette laminaatvloer. De master bedroom aan de achterzijde beschikt over een vaste kastenwand en knieschotten voor extra bergruimte.
De tweede slaapkamer is multifunctioneel inzetbaar als werk- of wasruimte, compleet met een ingebouwde schuifkastenwand.
De moderne badkamer is praktisch ingedeeld met een inloopdouche met thermostaatkraan, een wastafelmeubel met spiegelkast en een radiator.
Buitenruimte
Het royale balkon op het noordoosten is een heerlijke plek om te genieten van de zon, een goed boek of een gezellige borrel met vrienden. Dankzij de ligging aan het hofje én het vrije uitzicht, ervaar je hier volop rust en ruimte. Aan de voorzijde is een ruim gezamenlijk terras op het zuidwesten.
Bijzonderheden:
- Twee slaapkamers
- Ruim balkon
- Fraai groen uitzicht aan achterzijde
- HR-combiketel (Atag 2015)
- Energielabel B
- VvE-bijdrage: €139,- per maand
Zoek jij een ruime maisonnette met veel licht, ruimte én een prachtig uitzicht? Maak dan snel een afspraak en ontdek de charme van Stoholm 105!
| Kenmerken | |
| Woonoppervlakte | 76 m² |
| Gebouwgebonden buitenruimte | 8 m² |
| Externe bergruimte | 6 m² |
| Inhoud | 281 m³ |
| Bouwjaar | 1982 |
| Energielabel | B |















