- VERKOCHT ONDER VOORBEHOUD
Altijd al willen wonen aan de prachtige ringvaart met vrij uitzicht over het water?
Deze charmante en karakteristieke twee-onder-een-kap dijkwoning uit 1901, zonder recht van opstal, is een plek waar historie, rust en water samenkomen — en waar u elke dag geniet van het buitenleven met de stad op korte afstand.
Wonen met karakter en comfort
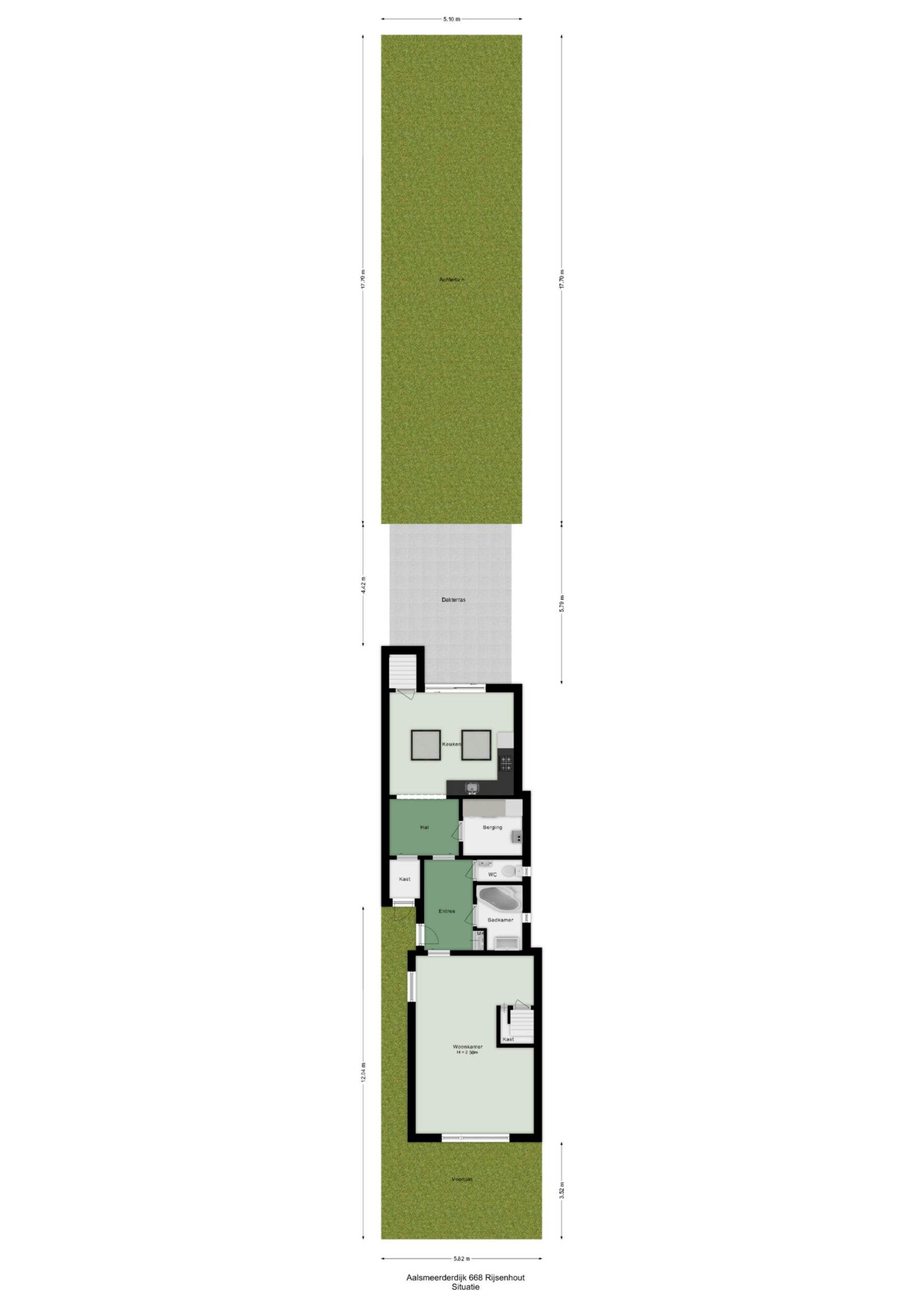
De woning is heerlijk licht en heeft een warme, sfeervolle uitstraling. Op een perceel van 215 m² en met 120m² woonoppervlakte biedt deze woning verrassend veel ruimte. De gezellige woonkamer met uitzicht op de Ringvaart ademt sfeer, terwijl de ruime leefkeuken aan de achterzijde uitnodigt tot lange avonden tafelen. Het dakterras en de tuin zijn royaal en zonnig — perfect voor zomerse dagen met familie en vrienden.
En het mooiste? U kunt genieten van het uitzicht op de Ringvaart vanuit de woonkamer, vanaf de kade of in uw eigen boot. Vanaf hier vaart u zó de Ringvaart op of richting de Westeinderplassen. Het recht van opstal is volledig afgekocht (2022), wat betekent dat het huis op eigen grond staat en u hier zorgeloos kunt wonen.
Indeling
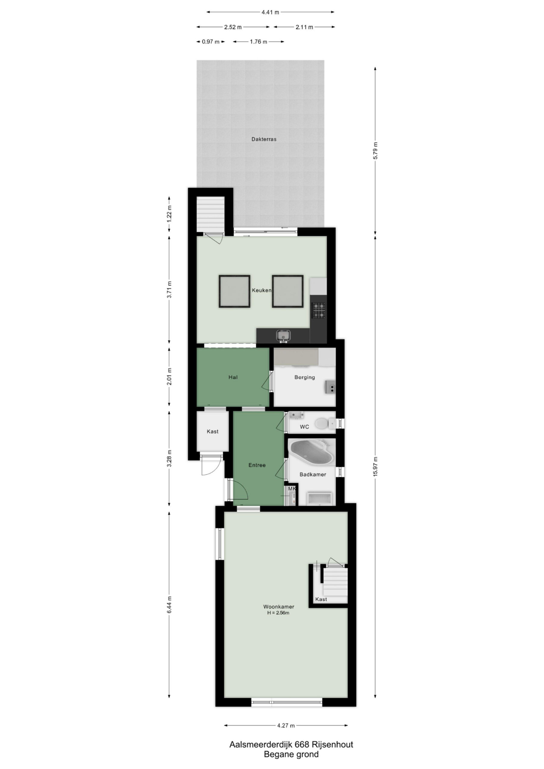
Begane grond
Entree via de hal met toegang tot alle vertrekken. De leefkeuken aan de achterzijde is voorzien van diverse inbouwapparatuur en biedt toegang tot het ruime dakterras van ca. 24 m² — een heerlijke plek om te ontspannen met een goed glas wijn of kop koffie.
De badkamer is voorzien van een bad/douche en een wastafelmeubel en bergkast. Er is een separaat toilet en een aparte ruimte voor de wasmachine, droger en CV-opstelling. Aan de voorzijde bevindt zich de sfeervolle woonkamer met een uniek uitzicht over de Ringvaart — een uitzicht dat nooit verveelt.
Eerste verdieping
Via de trap in de woonkamer bereikt u de eerste verdieping met drie slaapkamers. Ideaal voor een gezin, logees of een thuiskantoor.
Souterrain
Een verrassend ruime en multifunctionele ruimte — perfect als woonruimte, klusruimte, hobbyruimte of opslag. Aansluitend is er een grote berging met voldoende plek voor motorfietsen, (brom)fietsen of andere spullen.
Tuin
De achtertuin van maar liefst 77 m² is een oase van rust. Hier geniet u van de zon, de privacy en het uitzicht over de omgeving.
Ligging
De woning ligt op een prachtige locatie aan de Ringvaart, met directe vaarverbinding naar de Westeinderplassen. Tegelijkertijd zijn de uitvalswegen richting Amsterdam, Den Haag, Haarlem en Schiphol uitstekend bereikbaar.
Bijzonderheden:
- Woonoppervlakte 120m2
- Perceeloppervlakte 215m2
- Recht van opstal is afgekocht
- Souterrain
- Dakterras
- Vrij uitzicht
Bent u net zo enthousiast als wij?
Dan nodigen wij u van harte uit om deze bijzondere woning zelf te komen ervaren. Maak snel een afspraak voor een bezichtiging — dit is een unieke kans die u niet wilt missen!
| Kenmerken | |
| Woonoppervlakte | 120 m² |
| Inpandige bergruimte | 11 m² |
| Gebouwgebonden buitenruimte | 24 m² |
| Perceel | 215 m² |
| Inhoud | 460 m³ |
| Bouwjaar | 1901 |
| Energielabel | E |

















