- VERKOCHT
Instapklare, duurzame (A) gezinswoning met diepe zonnige tuin in geliefd Getsewoud-Noord!
Ben je op zoek naar een moderne, perfect afgewerkte eengezinswoning waar je zó in kunt? Een huis dat niet alleen stijl en comfort biedt, maar ook toekomstbestendig en energiezuinig is? Welkom bij deze prachtige tussenwoning— dé ideale plek voor gezinnen die ruim, duurzaam en zorgeloos willen wonen.
Toplocatie & bereikbaarheid
Hier woon je rustig, maar met uitstekende verbindingen richting Amsterdam, Schiphol, Den Haag en Rotterdam. Het busstation ligt op loopafstand en uitvalswegen zijn snel te bereiken. Handig voor zowel forenzen als gezinnen met een actief leven.
Waarom dit jouw droomhuis is
- Instapklaar dankzij zorgvuldige renovaties
- Energielabel A – compleet met HR++ glas, waterontharder en glasvezel en 14 zonnepanelen
- Diepe, zonnige achtertuin met sfeerverlichting en een royale houten schuur met elektra en achterom
- Ruimte voor het hele gezin met 5 slaapkamers: 3 slaapkamers op de eerste verdieping + 2 ruime kamers op zolder
- Moderne keuken met luxe apparatuur met erker
- Waterdamp-openhaard voor extra sfeer •
- Strak, warm en stijlvol wooncomfort
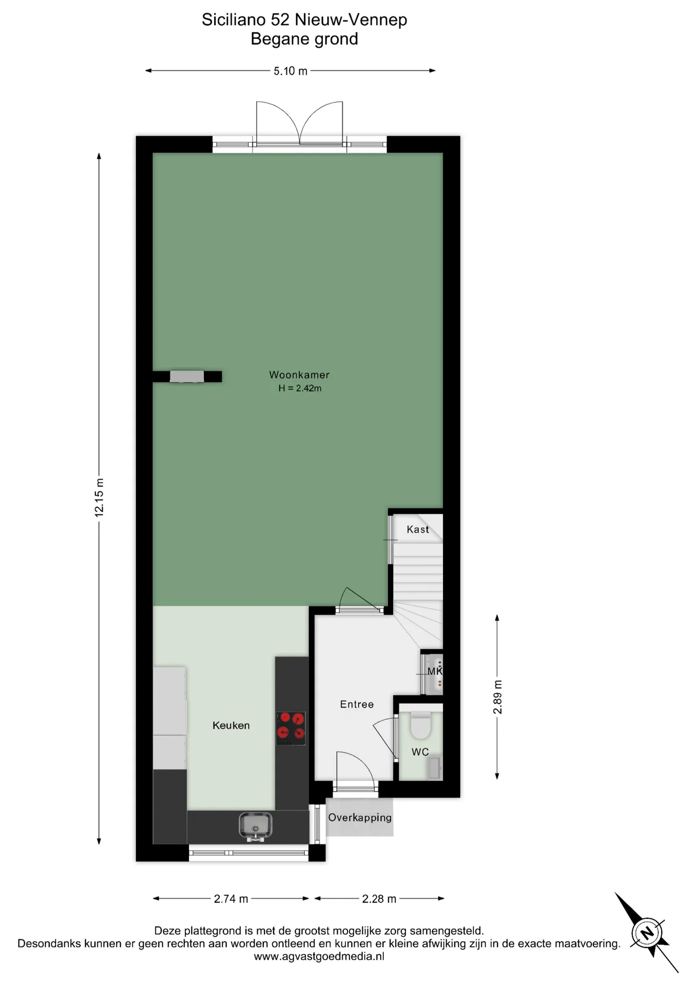
Indeling
Begane grond
Je komt binnen in de nette entreehal met half betegelde toiletruimte (wandcloset & fontein), meterkast met 10 groepen, krachtstroom (driefase), omvormer en waterontharder.
De lichte woonkamer heeft een waterdamp-openhaard, vloerverwarming en openslaande deuren naar de tuin. Ideaal voor warme zomerdagen én gezellige winters.
De moderne keuken is echt een parel en volledig uitgerust met: warmhoudlade, combi-oven, grote koelkast, 4-laden vriezer, Quooker, Bora-kookplaat met afzuiging naar buiten, vaatwasser, veel kastruimte (o.a. Le Mans-kast) in een sfeervolle hoekopstelling.
Eerste verdieping
De trap is stijlvol bekleed met Stairz met perfecte geluidsdemping. De verdieping is geheel voorzien van een moderne PVC-vloer. Op deze verdieping tref je 3 royale slaapkamers aan met draai-kiepramen en een smaakvol afgewerkte badkamer met douchecabine, wandbetegeling, wastafelmeubel, inbouwspotjes. De rolluiken aan de voorzijde werken op zonne-energie.
Tweede verdieping
Een ruime overloop geeft toegang tot twee grote slaapkamers, beide met op maat gemaakte kasten onder de schuinte van de dakkapellen (2013) met HR++ glas, welke zorgen voor veel licht en extra leefruimte. Verder tref je de CV-installatie, knieschotten voor extra bergruimte, rolluiken aan zowel de voor- én achterzijde op zonne-energie.
Tuin & berging
De diepe, zonnige achtertuin is een waar genot: netjes aangelegd, verzorgd en voorzien van sfeerverlichting in de borders. Achterin staat een houten schuur met elektra, perfect voor hobby’s, opslag of fietsen en er is een achterom.
Kom kijken en laat je verrassen!
Deze woning is tot in de puntjes verzorgd, duurzaam ingericht en ideaal voor gezinnen die graag comfortabel en stijlvol willen wonen in het geliefde Getsewoud-Noord.
Plan snel een bezichtiging en ervaar zelf hoe instapklaar dit prachtige familiehuis werkelijk is!
| Kenmerken | |
| Woonoppervlakte | 133 m² |
| Gebouwgebonden buitenruimte | 1 m² |
| Externe bergruimte | 9 m² |
| Perceel | 172 m² |
| Inhoud | 441 m³ |
| Bouwjaar | 2006 |
| Energielabel | A |



















